연회

Banquet Hall

연회
고품격 프리미엄 연회공간을
그랜드컨벤션센터에서 제공합니다.
Play
Stop
Sound On
Sound Off
Banquet Hall
연회
다양한 규모의 연회공간,
세미나 · 기업연회에 최적의 환경을 제공
고품격 프리미엄 연회공간을 그랜드컨벤션센터에서 제공합니다. 40석~1,000석까지 소형, 중형, 대형 등 다양한 연회홀로 구성이 되어 세미나 · 리셉션 · 런칭쇼 · 송년회 · 기념식 등 다양한 행사에 맞는 최적의 환경을 제공합니다.

연회

Banquet Hall

고품격 프리미엄 연회공간을
그랜드컨벤션센터에서 제공합니다.

Special Feature
40석~1,000석까지 소형, 중형, 대형 등
다양한 연회홀로 구성이 되어
세미나 · 리셉션 · 런칭쇼 · 송년회 · 기념식 등
다양한 행사에 맞는 최적의 환경을 제공합니다.

고급스러운 인테리어와 6M의 탁트인 층고,
첨단 조명기기와 음향 시설,
영상 시스템을 갖추고 있습니다.

다양한 행사 형태에 따라
테이블형, 세미나형, 연회형으로
테이블 배치가 가능하며,
특별한 날을 기념하기 위한 특별한 장소,
그리고 세심한 정성과
최상의 서비스를 제공해 드립니다.
Floor2F
Scale40석 ~ 1,000석

Variety Banquet Hall

다양한 연회공간

Banquet Hall

대연회장 1,000석

1,000석으로 구성된
특급호텔 규모의 초대형 연회장

대연회홀은 1,000석으로 구성된
특급호텔 규모의 초대형 연회를 자랑합니다.
고급스러운 인테리어로 장식한 대규모 홀로
6M의 탁트인 층고, 최신 조명기기와
음향시설, 영상 시스템을 갖춘 홀입니다.

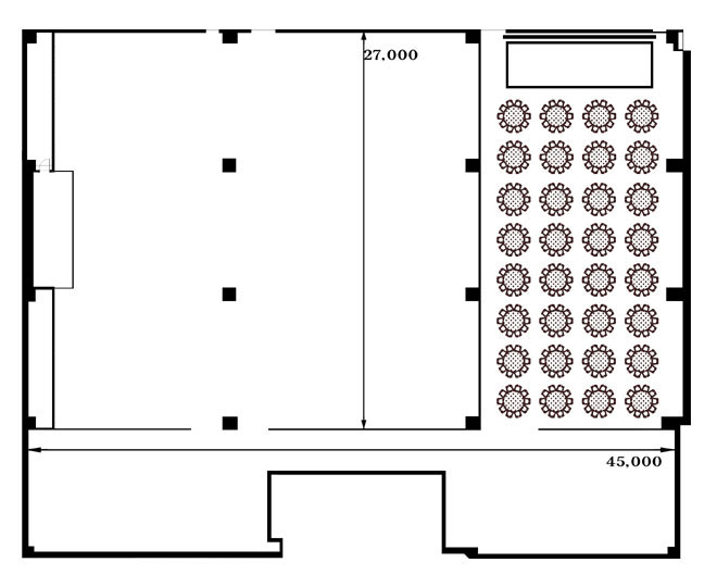
좌석 배치도
Banquet Hall

연회장

기업세미나에 적합한
다양한 규모의 연회장

그랜드컨벤션센터의 중형홀 구성은
그랜드홀 400석, 리젠시홀 300석,
토파즈홀 250석의 3가지 규모로 구성하였고
기업세미나에 최적의 환경을 제공합니다.

좌석 배치도

연회 실적

Banquet Performance

그랜드컨벤션센터의 노하우로
귀하의 성공적인 연회를 약속합니다.